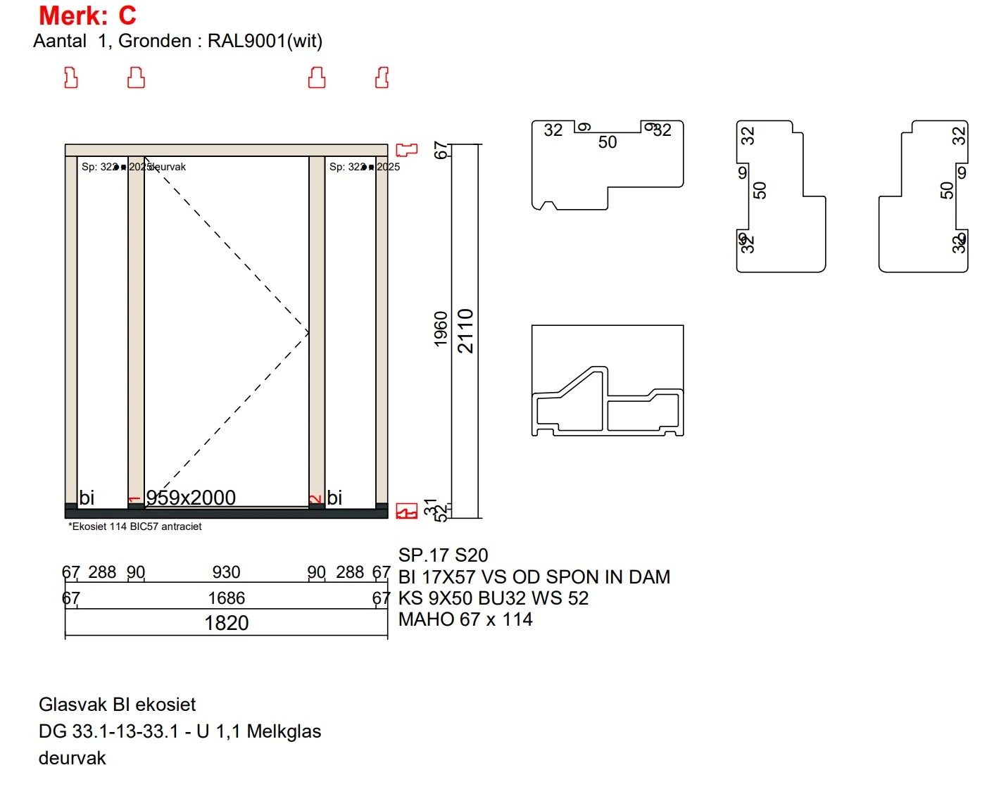
Voordeur kozijn met zijlicht